
Sở hữu địa thế tuyệt vời ngay Bán Đảo Cảm Ranh với 5km đường bờ biển, KN Caraworld có nhiều tiềm năng, lợi thế sẵn có để trờ thành một thành phố nghỉ dưỡng đẳng cấp quốc tế hàng đầu tại Việt Nam. Tiềm năng vị trí dự án như thế nào, lợi thế địa hình ra sao. Mời A/C xem tiếp bài viết.
Vị Trí Dự Án Kn Caraworld
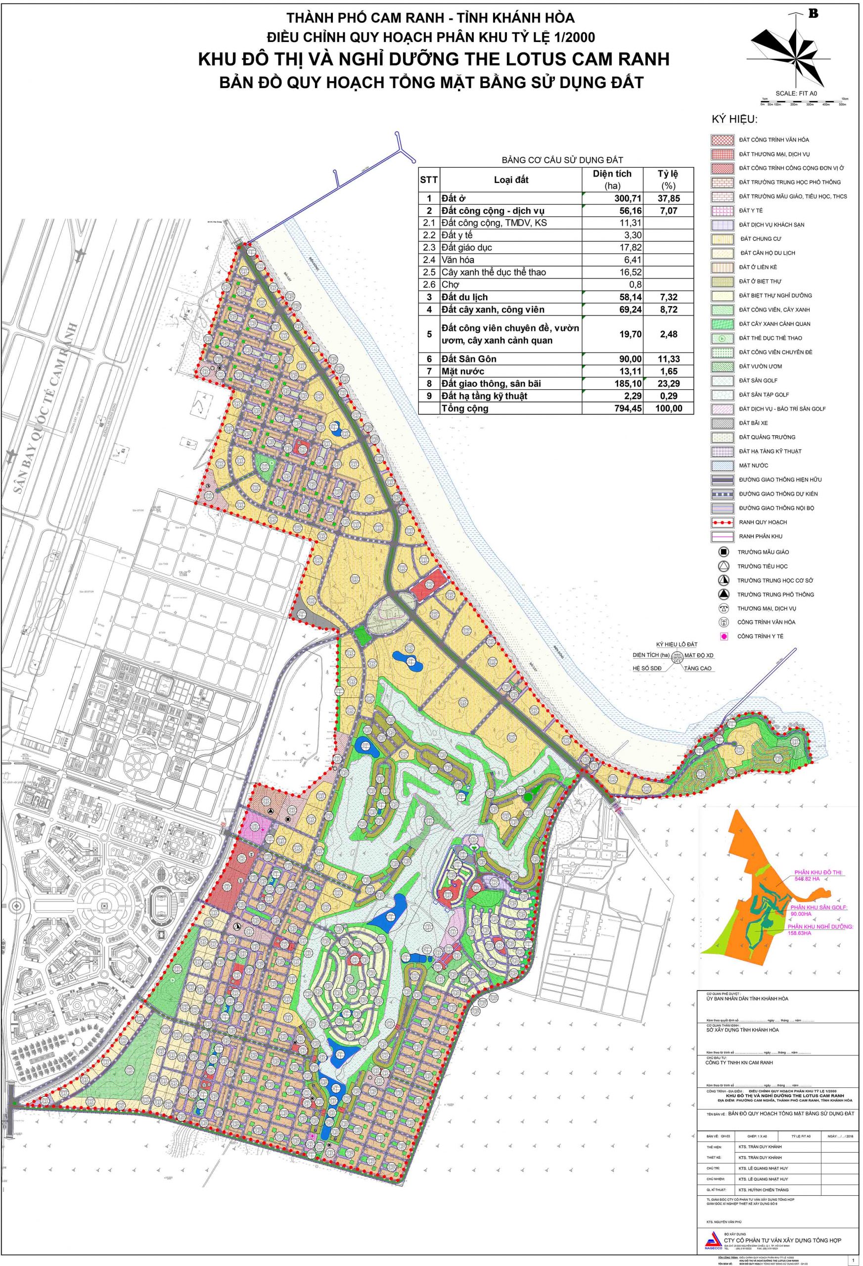
Kn Caraworld cóa quy mô 794ha, tọa lạc tại phường Cam Nghĩa, huyện Cam Lâm, tỉnh Khánh Hòa.
Nằm liền kề sân bay quốc tế Cam Ranh, sở hữu địa thế tuyệt vời với gần 5km đường bờ biển trong xanh như ngọc, tựa lưng vào bán đảo Cam Ranh đầy hoang sơ và quyến rũ.
Các hướng kết nối – thời gian:
- Sân bay Cam Ranh: 2km
- Cảng biển quốc tế Cam Ranh: 3km
- Quốc lộ 1A: 4km
- Thành phố Cam Ranh: 6km
- Thành phố Nha Trang: 37km
- Thành phố Hồ Chí Minh: Bay 1h
- Thành phố Hà Nội: Bay 1h50 phút
Các hướng tiếp giáp của Kn Caraworld
- Phía Đông& Đông Bắc giáp biển Đông
- Phía Tây & Tây Bắc giáp sân bay Cam Ranh, khu quân sự và đầm thủy triều
- Phía Nam giáp khu quân sự & cảng biến quốc tế Cam Ranh
- Phía Bắc giáp biển đông
Dự án sở hữu địa hình dốc thoải hướng ra biển “Tựa Sơn Hướng Hải”, nên các sản phẩm biệt thự sẽ có tầm view bao la về biển Đông.
Tại đây khách hàng cũng có đa dạng trải nghiệm với 5 loại địa hình: Biển, núi, đầm, đảo, sa mạc.
Tiềm năng Phát Triển
Kn Caraworld là Điểm du lịch đầu tiên mà du khách nhìn thấy khi đến với Khánh Hòa bằng đường Biển hoặc Hàng không. Là một thiên đường giải trí tuyệt vời mà bất kì du khách nào khi đến với Khánh Hòa đều muốn trải nghiệm.
Dự án gần với các cụm đảo du lịch nổi tiếng như: Tứ Bình, Hòn Nội, Hòn Ngoại, Bãi Biển Đôi…cùng với ưu thế sở hữu bến du thuyền – rất thích hợp phát triển du lịch đảo ngắm san hô, tiệc tùng trên biển…
Sân bay Cam Ranh hiện có hàng chục tuyến bay kết nối trực tiếp với nhiều quốc gia châu Âu, Nga, Trung Quốc, Hàn Quốc, Đài Loan, Thái Lan, Mã Lai…Mỗi năm thu hút hàng triệu lượt khách quốc tế đến đây du lịch.
Bản đồ quy hoạch tổng thể dự án Kn Caraworld
Các bài viết liên quan


Cập Nhật Tiến Độ Thực Tế Dự Án Kn Caraworld Cam Ranh 2024
24 Tháng mười hai, 2021
Không có bình luận
Xem ngay »

KN Caraworld – Kiến tạo điểm đến toàn cầu mới tại Cam Ranh
7 Tháng mười hai, 2021
Không có bình luận
Xem ngay »
Nếu cần thêm sự hỗ trợ tư vấn về thông tin, quy hoạch, pháp lí… của dự án.
Anh /Chị vui lòng để lại thông tin hoạc gọi theo số Hotline: 0924727777.
Các chuyên viên tư vấn nhiệt tình nhất quả đất sẵn sàng phục vụ quý A/C.
